Stan
Prodaja
8 mjeseci ago
119
Stan u novogradnji na prodaju
Saznajte više
Detalji nekretnine
Vrsta nekretnine:
Stan
Dnevni boravak:
1
Godina izgradnje:
2026
Kuhinje:
1
Površina:
79.90
Spavaće sobe:
3
Površina zemljišta:
N / A
Garaže / parking:
Dva mjesta za parking
Orijentacija:
N / A
Kupaonice:
2
Ukupan broj prostorija:
N / A
Opis
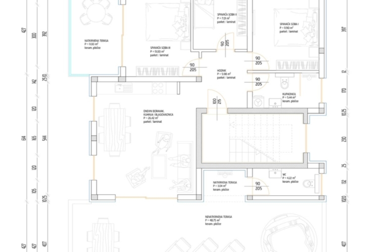
NOVOGRADNJA – Kožino, Zadar
Na prodaju stan na drugom katu stambene zgrade, smješten u mirnom dijelu Kožina, idealan za obiteljski život ili odmor.
Stan S3 – drugi kat
•Neto stambena površina: 79,90 m²
•Ukupna korisna površina s terasom, i parkingom: 104,61 m²
Raspored prostorija:
•Kuhinja, blagovaonica i dnevni boravak (26,42 m²)
•Hodnik
•2 kupaonice
•Tri spavaće sobe
Posebnosti:
•2 natkrivene terase+1 nenatkrivena terasa
•Dva parkirna mjesta
Završetak gradnje: 8.–12. mjesec 2026.
Cijena: po dogovoru
Stan nudi udoban i funkcionalan raspored, moderan dizajn te atraktivnu lokaciju blizu Zadra, u mirnom okruženju pogodnom za stanovanje ili odmor.
Za sve dodatne informacije i rezervaciju, obratite nam se.
Istaknute nekretnine
Prodaja
Novogradnja u Velikoj Gorici - trosoban stan
City of Velika Gorica, Zagreb County, Croatia
Prodaja
Novogradnja u Velikoj Gorici (Četverosoban stan)
City of Velika Gorica, Zagreb County, Croatia
Prodaja
Novogradnja u Velikoj Gorici
City of Velika Gorica, Zagreb County, Croatia
Slične nekretnine
Prodaja
Novogradnja u Velikoj Gorici - trosoban stan
City of Velika Gorica, Zagreb County, Croatia
Prodaja
Novogradnja u Velikoj Gorici (Četverosoban stan)
City of Velika Gorica, Zagreb County, Croatia
Prodaja
Novogradnja u Velikoj Gorici
City of Velika Gorica, Zagreb County, Croatia